Maison 89 m² avec terrain à LA FERTE-SAINT-AUBIN (45)
- /
- Nos offres Maison+Terrain
- /
- Maison 89 m² avec terrain à LA FERTE-SAINT-AUBIN (45)










A propos de cette offre
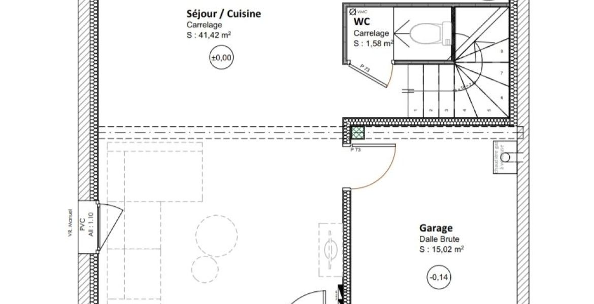
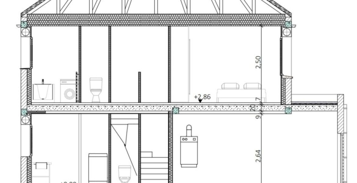
Confiez votre Projet de Vie à une entreprise à taille humaine qui vous ressemble et vous accompagne depuis 10 ans sur le Loiret ! Comme vous, nous aimons le sur-mesure et saurons être à votre écoute pour nous adapter à vos envies. A LA FERTE-SAINT-AUBIN sur un terrain de 228 m², "Mon Courtier Maison" vous propose, par le biais de ses partenaires, une maison individuelle de 89 m2 habitable tendance avec un agencement intérieur optimal. Le RDC accueille un bel espace de vie lumineux et convivial, une cuisine ouverte sur la salle à manger, un WC et un garage. L'espace nuit, pour plus de tranquillité, se situe à l'étage et se compose de trois chambres spacieuses avec zones placards, d'une salle de bains et d'un WC séparé.
Informations du terrain : Terrain de 228 m² situé en lotissement.
Aux portes de Sologne, La Ferté Saint Aubin accueille plus de 7500 habitants et propose un panel de 232 commerçants, artisans et professions libérales. 96 associations animent la vie de cette commune à la situation géographique privilégiée.
Riche de ce dynamisme économique, son patrimoine architectural est tout autant fertile (château du 16ème siècle, vieux quartier Saint-Michel avec ses maisons à colombages, la majestueuse tour Saint-Aubin, la halle aux grains...).
Demandez une étude gratuite et personnalisée sur ce terrain à LA FERTE-SAINT-AUBIN !
Contactez Stéphanie BOSSUET au 06 12 90 06 69 / 02 38 14 67 59. Nos réalisations : https://www.moncourtiermaison.fr/societe/realisations.html
SL HOME, SARL au capital de 5 000€ / Réseau MON COURTIER MAISON – Courtier en travaux neuf 652, rue Marcel Belot – 45160 OLIVET – 02 38 66 06 04 RCS ORLEANS B 805 035 375 – APE 8299Z Mon Courtier Maison n’a pas la qualité juridique d’un constructeur et n’est au service exclusif d’aucune entreprise de travaux. Bien sélectionné par un partenaire foncier. Sous toutes réserves de disponibilité et de prix, de raccordements, de branchements, de frais accessoires, dont frais de Notaire. Une création MON COURTIER MAISON@2021 – Crédit photo : Mon Courtier Maison.
Caractéristiques
- Modèle présenté : ZENOBIA
- Surface : 89 m²
- Pièces : 4
- Chambres : 3
- Garage : m2
- Commune : 45240 LA FERTE-SAINT-AUBIN
- Surface terrain : 228 m²
- En lotissement : non
- Prix : 44 910 €
Informations complémentaires
Terrain de 228 m² situé en lotissement. Aux portes de Sologne, La Ferté Saint Aubin accueille plus de 7500 habitants et propose un panel de 232 commerçants, artisans et professions libérales. 96 associations animent la vie de cette commune à la situation géographique privilégiée. Riche de ce dynamisme économique, son patrimoine architectural est tout autant fertile (château du 16ème siècle, vieux quartier Saint-Michel avec ses maisons à colombages, la majestueuse tour Saint-Aubin, la halle aux grains...).Localisation
Demandez une étude gratuite pour votre projet de construction
